Property ID: 1P4117
2/59-61 Mclauchlan Road Windsor Gardens SA
$975,000
- 3
- 2
- 2
-
House
-
For Sale
-
Sat 14th of Feb01:45 PM - 02:15 PM
-
2
Stylish single level new homes in a beautiful family location.
Spacious & impressive, this contemporary home will be built to a very high standard with all the extras included.
Single level homes are becoming rare.
Beautiful Linear Park with multiple playgrounds, walking trail and sports reserve is only a 5 minute walk away at the end of the street!
Close to Lochiel Park golf course.
10min walk to Paradise O-Bahn interchange.
Windsor Gardens truly is a family friendly living environment to enjoy and also so convenient.
Separate Torrens Title home with an awesome private driveway setting the home back from the street but still with street frontage.
We are selling this home during the construction phase.
Construction will commence in approximately March this year with expected completion due in around February 2027, possibly sooner. Just pay your 10% deposit now and the balance when the home is complete.
PAUL ANTHONY CONSTRUCTIONS
Being built by an extremely good builder who takes a lot of pride in their building work. Paul Anthony Constructions are a second-generation building company. Experienced and their homes show this.
Designed by renowned architect Three Six Five Studio
Interior designs by Adriana.
All the top experts in their field have worked on this project of inspiring homes.
Dwelling 1 SOLD first week
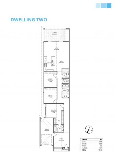
Dwelling 2 $975,000
2 separate light & bright living areas.
Generous under cover alfresco entertaining area.
Good sized fully landscaped rear yards.
Big bedrooms. 3 in total.
Stunning deluxe main bedroom suite complete with large walk in robes and sparkling ensuite bathroom with twin vanity.
Luxurious main bathroom complete with floor to ceiling tiles, stone bench tops, double size shower and a freestanding bath tub.
Impressive kitchen. Perfect for family living and entertaining. So much custom storage.
Bosch appliances. It's all high quality.
Open plan living at its best with a meals area and a family living room that can be spread out and to wall to accommodate large furniture. Such a
great space.
This home will definitely sell quickly.
Everything is included except blinds and the quality is very good.
• Security System
• Bosch appliances including dishwasher and 900mm gas cooktops
• Ducted reverse cycle air-conditioning with full zone control
• Full height floor to ceiling tiles
• Stone benchtops
• 2.7m high ceilings
• 2.4 internal door and window heights
• Fully landscaped with irrigation
• Letterbox
• LED downlights
• Built in robes
• NBN ready
and much more
Call or email Theon Bruse for a detailed information brochure. Once you have had a look through the brochure, get in touch with Theon Bruse to arrange an appointment at our Toorak Gardens Office.
Theon Bruse
M - 0419 816 470
E - theon.bruse@bruse.com.au
Single level homes are becoming rare.
Beautiful Linear Park with multiple playgrounds, walking trail and sports reserve is only a 5 minute walk away at the end of the street!
Close to Lochiel Park golf course.
10min walk to Paradise O-Bahn interchange.
Windsor Gardens truly is a family friendly living environment to enjoy and also so convenient.
Separate Torrens Title home with an awesome private driveway setting the home back from the street but still with street frontage.
We are selling this home during the construction phase.
Construction will commence in approximately March this year with expected completion due in around February 2027, possibly sooner. Just pay your 10% deposit now and the balance when the home is complete.
PAUL ANTHONY CONSTRUCTIONS
Being built by an extremely good builder who takes a lot of pride in their building work. Paul Anthony Constructions are a second-generation building company. Experienced and their homes show this.
Designed by renowned architect Three Six Five Studio
Interior designs by Adriana.
All the top experts in their field have worked on this project of inspiring homes.
Dwelling 1 SOLD first week
Dwelling 2 $975,000
2 separate light & bright living areas.
Generous under cover alfresco entertaining area.
Good sized fully landscaped rear yards.
Big bedrooms. 3 in total.
Stunning deluxe main bedroom suite complete with large walk in robes and sparkling ensuite bathroom with twin vanity.
Luxurious main bathroom complete with floor to ceiling tiles, stone bench tops, double size shower and a freestanding bath tub.
Impressive kitchen. Perfect for family living and entertaining. So much custom storage.
Bosch appliances. It's all high quality.
Open plan living at its best with a meals area and a family living room that can be spread out and to wall to accommodate large furniture. Such a
great space.
This home will definitely sell quickly.
Everything is included except blinds and the quality is very good.
• Security System
• Bosch appliances including dishwasher and 900mm gas cooktops
• Ducted reverse cycle air-conditioning with full zone control
• Full height floor to ceiling tiles
• Stone benchtops
• 2.7m high ceilings
• 2.4 internal door and window heights
• Fully landscaped with irrigation
• Letterbox
• LED downlights
• Built in robes
• NBN ready
and much more
Call or email Theon Bruse for a detailed information brochure. Once you have had a look through the brochure, get in touch with Theon Bruse to arrange an appointment at our Toorak Gardens Office.
Theon Bruse
M - 0419 816 470
E - theon.bruse@bruse.com.au
