Property ID: 1P3986
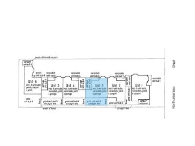
3/59 Northumberland Street Tusmore SA
$ 720,000
- 2
- 1
- 1
-
Unit
-
Sold
-
1
What a great spot to live. Close to Parks, Transport, Schools and Burnside Village shopping.
SOLD FIRST WEEK $720,000
This is a very desirable unit in an amazing location and offers a generous open plan living, dining and kitchen. The kitchen and bathroom have been renovated to a very high standard and gives the opportunity to buyers to move in, live and enjoy a wonderful life.
Beautiful polished floorboards throughout the home.
The home unit has been well maintained and looked after for many years.
This unit has two excellent bonuses, a private rear yard with gardens and a undercover outdoor living area. The second bonus the property has a lock up garage with electric roller door.
The home unit also includes a very large open plan living and dining area which is ideal for entertaining and is adjacent to the great kitchen area with ample cupboard and bench space.
The home has two very good size bedrooms, both with built in robes.
Quality blinds right throughout and ducted reverse cycle air conditioning.
It is a unit that is ready to move into and enjoy a wonderful lifestyle. it certainly has an appeal and its location is spectacular.
The Unit will sell quickly as it is in a very sort after opportunity.
Bevan Bruse
0419 809 852
VENDORS POINTS OF INTEREST
The property was previously rented for 12 months to a young couple who sent an email about how much they enjoyed living in the property. The unit was a very pleasing and pleasant home to live in.
The benefits of the location are spectacular, shopping, transport, schooling and every other convenience of the Eastern suburbs is close by.
2 Good sized bedrooms is a real bonus.
The open plan living and dining allows for large entertaining if so desired.
ZONED SCHOOLS
Burnside Primary School
Linden Park Primary School
Marryatville High School
INFORMATION
Certificate Of Title: Volume 5016 Folio 773
Council: City of Burnside
Zoning: Established Neighbourhood
Strata Levy: $450 per quarter (admin)
Council Rates: $1085.60 per year
SA Water Rates: $165.55 per quarter
Emergency Services Levy: $115.15 per year
Year Built: 1968
All information provided has been obtained from sources we believe to be accurate, however, we cannot guarantee the information is accurate and we accept no liability for any errors or omissions (including but not limited to a property's land size, floor plans and size, building age and condition) Interested parties should make their own enquiries and obtain their own legal advice. RLA 181689
This is a very desirable unit in an amazing location and offers a generous open plan living, dining and kitchen. The kitchen and bathroom have been renovated to a very high standard and gives the opportunity to buyers to move in, live and enjoy a wonderful life.
Beautiful polished floorboards throughout the home.
The home unit has been well maintained and looked after for many years.
This unit has two excellent bonuses, a private rear yard with gardens and a undercover outdoor living area. The second bonus the property has a lock up garage with electric roller door.
The home unit also includes a very large open plan living and dining area which is ideal for entertaining and is adjacent to the great kitchen area with ample cupboard and bench space.
The home has two very good size bedrooms, both with built in robes.
Quality blinds right throughout and ducted reverse cycle air conditioning.
It is a unit that is ready to move into and enjoy a wonderful lifestyle. it certainly has an appeal and its location is spectacular.
The Unit will sell quickly as it is in a very sort after opportunity.
Bevan Bruse
0419 809 852
VENDORS POINTS OF INTEREST
The property was previously rented for 12 months to a young couple who sent an email about how much they enjoyed living in the property. The unit was a very pleasing and pleasant home to live in.
The benefits of the location are spectacular, shopping, transport, schooling and every other convenience of the Eastern suburbs is close by.
2 Good sized bedrooms is a real bonus.
The open plan living and dining allows for large entertaining if so desired.
ZONED SCHOOLS
Burnside Primary School
Linden Park Primary School
Marryatville High School
INFORMATION
Certificate Of Title: Volume 5016 Folio 773
Council: City of Burnside
Zoning: Established Neighbourhood
Strata Levy: $450 per quarter (admin)
Council Rates: $1085.60 per year
SA Water Rates: $165.55 per quarter
Emergency Services Levy: $115.15 per year
Year Built: 1968
All information provided has been obtained from sources we believe to be accurate, however, we cannot guarantee the information is accurate and we accept no liability for any errors or omissions (including but not limited to a property's land size, floor plans and size, building age and condition) Interested parties should make their own enquiries and obtain their own legal advice. RLA 181689
