Property ID: 6180801
58 Wright Street Renown Park SA
$430 per week
- 3
- 1
- 2
-
House
-
For Lease
-
Wed 3rd of Mar05:00 PM - 05:15 PM
-
2
-
Now
-
$2,580
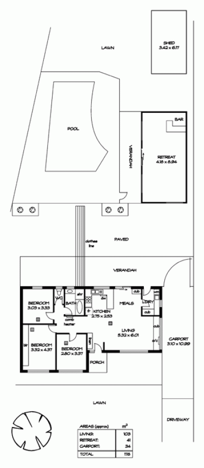
Spacious Family Home with Swimming Pool!
** OPEN INSPECTIONS SATURDAY 27TH FEBRUARY 11.05-11.15AM AND WEDNESDAY 5.00-5.15PM **
This well presented three bedroom home includes an in-ground swimming pool and separate rumpus room.
- 3 bedroom
- 2 living areas
- 1 bathroom
- Ducted evaporative air conditioning plus reverse cycle split system
- Ingoing Saltwater Swimming Pool
Other features are:
>Generous open plan kitchen, living, dining area with direct access to the outdoor undercover entertaining area overlooking the fenced pool
>Kitchen includes gas cooktop and oven, dishwasher and plenty of bench and cupboard space
>Main bedroom with large built in robe
>Bedroom 2 and 3 are of a good size
>Full main bathroom and separate toilet
>Ducted evaporative cooling throughout the home
>Reverse cycle split system located in the living area of the home
>Separate laundry with built in cupboard
>Salt water swimming pool (with compliant fencing). Tenants are responsible for maintaining and chemically balancing the pool.
>External rumpus room located adjacent to the pool. This room includes a bar area
>Undercover carport with extra parking in the driveway
Pets Negotiable!
Please note the shed in the backyard and the gas wall heater in the passage are excluded from tenancy and not for tenant use.
Water charges applicable, in most cases, as legislated.
Disclaimer: All information provided has been obtained from sources we believe to be accurate, however, we cannot guarantee the information is accurate and we accept no liability for any errors or omissions (including but not limited to a property's land size, floor plans and size, building age and condition) Interested parties should make their own enquiries and obtain their own legal advice.
TO view, please call us on 0411 703 383
This well presented three bedroom home includes an in-ground swimming pool and separate rumpus room.
- 3 bedroom
- 2 living areas
- 1 bathroom
- Ducted evaporative air conditioning plus reverse cycle split system
- Ingoing Saltwater Swimming Pool
Other features are:
>Generous open plan kitchen, living, dining area with direct access to the outdoor undercover entertaining area overlooking the fenced pool
>Kitchen includes gas cooktop and oven, dishwasher and plenty of bench and cupboard space
>Main bedroom with large built in robe
>Bedroom 2 and 3 are of a good size
>Full main bathroom and separate toilet
>Ducted evaporative cooling throughout the home
>Reverse cycle split system located in the living area of the home
>Separate laundry with built in cupboard
>Salt water swimming pool (with compliant fencing). Tenants are responsible for maintaining and chemically balancing the pool.
>External rumpus room located adjacent to the pool. This room includes a bar area
>Undercover carport with extra parking in the driveway
Pets Negotiable!
Please note the shed in the backyard and the gas wall heater in the passage are excluded from tenancy and not for tenant use.
Water charges applicable, in most cases, as legislated.
Disclaimer: All information provided has been obtained from sources we believe to be accurate, however, we cannot guarantee the information is accurate and we accept no liability for any errors or omissions (including but not limited to a property's land size, floor plans and size, building age and condition) Interested parties should make their own enquiries and obtain their own legal advice.
TO view, please call us on 0411 703 383
Features
- Built-ins
- Pool
