Property ID: 5709432
30, 34 &35 Chapel Way (off Of Swan Ave) Rostrevor SA
$595,000
- 3
- 2
- 2
-
House
-
For Sale
-
Sun 28th of Feb12:30 PM - 01:00 PMWed 3rd of Mar04:00 PM - 04:15 PM
-
2
Documents
Live in this wonderful estate of new homes. Surrounded by quality homes, parks and gardens.
FOR OPEN INSPECTIONS, PLEASE MEET BEVAN BRUSE AT HOUSE NUMBER 25. PLEASE REFER TO SITE PLAN FOR MAP AND MEETING PLACE.
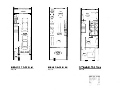
EACH HOME IS BUILT ON THREE LEVELS WITH DOUBLE LENGTH GARAGE ON LOWER LEVEL.
PURCHASE NOW & SETTLE ON COMPLETION. COMPLETION MARCH/APRIL 2021.
The middle floor of the homes have a balcony overlooking the central gardens. A large living area. Third w/c. Spectacular kitchen with high end quality fixtures and fittings and further through to the living and dining area. This area also includes a powder room.
The upper level of the homes have three spectacular bedrooms overlooking parks and gardens giving a feeling of space. Main bathroom, and ensuite to main bedrooms are all high quality designer style.
A laundry facility and entrance hallway just creating a ground floor service area.
Each of these homes have a ground floor garden area and a wonderful balcony. The garden outlook to the front is to a central court yard for visitors to park and surrounded by an attractive gardened area. On each corner of the development there is an attractive garden sitting/play area.
These homes are certainly very desirable homes that offer amazing outlooks to parks and gardens. A great opportunity to buy high-end quality finish homes that give an element of luxury to homes in this sought after Rostrevor Estate.
Surrounded by other quality homes and a beautiful old Church which is now being made into a residence gives this a very exciting environment and so close to everything in the east of Adelaide.
It is so close to good schooling, good transport and the excellent shopping that Rostrevor offers.
A brilliant and exciting lifestyle awaits the buyers of these homes.
THESE HOMES ARE BEING CONSTRUCTED BY WELL KNOWN EASTERN BUILDING GROUP WITH 22 YEARS EXPERIENCE OF BUILDING QUALITY HOMES AROUND ADELAIDE.
PRICES
29 - SOLD
30 - $595,000
34 - $595,000
35 - $595,000
We offer these homes for sale during the construction stage with SETTLEMENT AT COMPLETION. Just like buying an established home. This is very important to buyers - no hidden surprises & you don't have to deal with the builder or any price increases. Prices are fixed with everything included. Just pay a deposit now and the rest when the house is complete.
A full specification is available for you to receive by email which sets out the comprehensive detail of all fittings and fixtures, joinery, etc that will be included in the home. Please email bevan.bruse@bruse.com.au or call BEVAN BRUSE on 0419 809 852.
All information provided has been obtained from sources we believe to be accurate, however, we cannot guarantee the information is accurate and we accept no liability for any errors or omissions (including but not limited to a property's land size, floor plans and size, building age and condition) Interested parties should make their own enquiries and obtain their own legal advice. Pictures are for illustration purposes only.
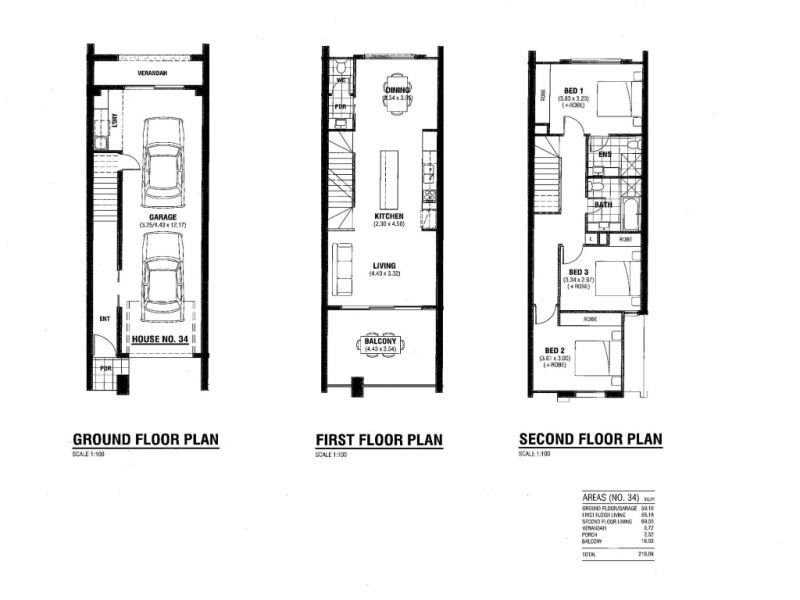
EACH HOME IS BUILT ON THREE LEVELS WITH DOUBLE LENGTH GARAGE ON LOWER LEVEL.
PURCHASE NOW & SETTLE ON COMPLETION. COMPLETION MARCH/APRIL 2021.
The middle floor of the homes have a balcony overlooking the central gardens. A large living area. Third w/c. Spectacular kitchen with high end quality fixtures and fittings and further through to the living and dining area. This area also includes a powder room.
The upper level of the homes have three spectacular bedrooms overlooking parks and gardens giving a feeling of space. Main bathroom, and ensuite to main bedrooms are all high quality designer style.
A laundry facility and entrance hallway just creating a ground floor service area.
Each of these homes have a ground floor garden area and a wonderful balcony. The garden outlook to the front is to a central court yard for visitors to park and surrounded by an attractive gardened area. On each corner of the development there is an attractive garden sitting/play area.
These homes are certainly very desirable homes that offer amazing outlooks to parks and gardens. A great opportunity to buy high-end quality finish homes that give an element of luxury to homes in this sought after Rostrevor Estate.
Surrounded by other quality homes and a beautiful old Church which is now being made into a residence gives this a very exciting environment and so close to everything in the east of Adelaide.
It is so close to good schooling, good transport and the excellent shopping that Rostrevor offers.
A brilliant and exciting lifestyle awaits the buyers of these homes.
THESE HOMES ARE BEING CONSTRUCTED BY WELL KNOWN EASTERN BUILDING GROUP WITH 22 YEARS EXPERIENCE OF BUILDING QUALITY HOMES AROUND ADELAIDE.
PRICES
29 - SOLD
30 - $595,000
34 - $595,000
35 - $595,000
We offer these homes for sale during the construction stage with SETTLEMENT AT COMPLETION. Just like buying an established home. This is very important to buyers - no hidden surprises & you don't have to deal with the builder or any price increases. Prices are fixed with everything included. Just pay a deposit now and the rest when the house is complete.
A full specification is available for you to receive by email which sets out the comprehensive detail of all fittings and fixtures, joinery, etc that will be included in the home. Please email bevan.bruse@bruse.com.au or call BEVAN BRUSE on 0419 809 852.
All information provided has been obtained from sources we believe to be accurate, however, we cannot guarantee the information is accurate and we accept no liability for any errors or omissions (including but not limited to a property's land size, floor plans and size, building age and condition) Interested parties should make their own enquiries and obtain their own legal advice. Pictures are for illustration purposes only.
